折叠
微信扫码
扫描二维码访问手机站
在线客服
客服
暂无联系客服
用户中心
意见反馈
展开
返回顶部
网站首页
公司简介
产品中心
企业相册
在线留言
新闻中心
联系我们
网站首页
>
产品中心
>
机电产品技术服务
>
电机综合试验系统
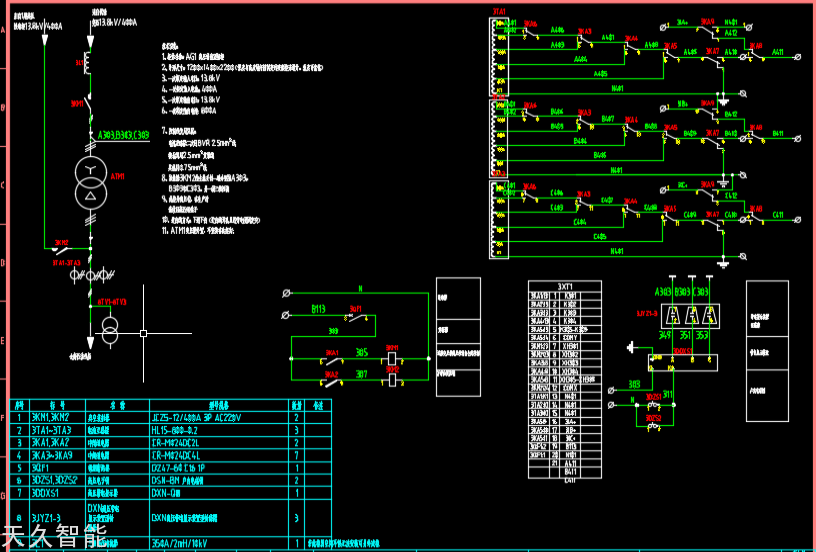
电机综合试验系统
测试功率: 6/10kV高压电机最大测试功率25000kW,1000V以下直流电机最大测试功率2500kW
名称:电机综合试验系统
产品价格:¥1.00
更多推荐 > >
可在线通过咨询了解详情
通过以下按钮进入下一步
详情
评价
首页
上一页
下一页
尾页
特别推荐
新能源电机旋变调零仪
机电设备维修及升级改造
定制类测控自动化产品
多路波形采集分析仪
控制器老化试验台